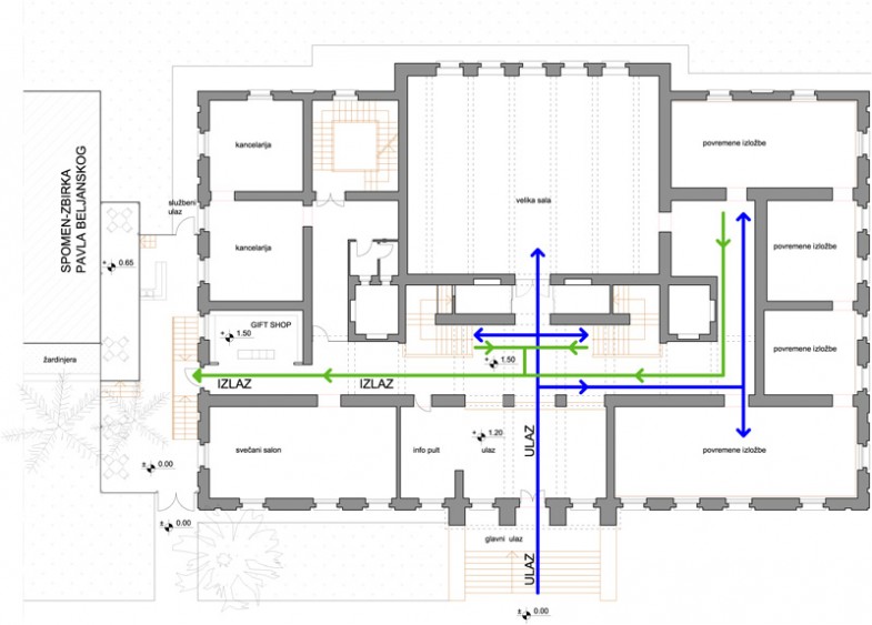
Idejno rešenje sanacije fasade i podrumskih prostorija Galerije Matice Srpske
Naziv: Elaborat sanacije fasade i podrumskih prostorija i idejno rešenje nove funkcionalne organizacije
Lokacija: Novi Sad, Srbija
Tip projekta: Rekonstrukcija, idejno resenje
Status: Idejno projekat
—
Elaborat sanacije fasade i podrumskih prostorija i idejno rešenje nove funkcionalne organizacije Galerije Matice Srpske











